14901 14904 14906 14908 14910 14912 14914 14916 14918

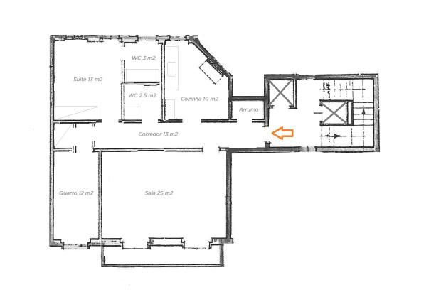
Espaçoso apartamento T2 com 100m², totalmente renovado, situado no coração de Campo de Ourique, um dos bairros mais desejados de Lisboa.

O apartamento destaca-se pela sua luminosidade e boa organização do espaço, com chão de madeira recentemente envernizado e pintura nova, proporcionando uma sensação de frescura e bem-estar em cada divisão.

A ampla sala dá acesso a uma varanda e tem diversas janelas tornando-a muito luminosa. A cozinha é funcional e bem distribuída e vem equipada com excepção da máquina da loiça. Dispõe ainda de uma suite confortável, um quarto adicional, e uma casa de banho completa.

O prédio tem 2 elevadores e porta de entrada com código, para maior comodidade.

📍
Localização e envolvente:

Viver em Campo de Ourique é desfrutar de um estilo de vida único — um bairro residencial e tranquilo, mas com uma oferta vibrante de comércio, serviços e lazer.
A poucos minutos a pé encontra:
– o Jardim da Parada, o Mercado de Campo de Ourique e o Centro Comercial das Amoreiras
– escolas e colégios de referência, como o Liceu Pedro Nunes e o Colégio Salesianos
– supermercados, pastelarias, padarias artesanais, ginásios, farmácias e todo o tipo de conveniências
– uma vasta oferta gastronómica, desde restaurantes tradicionais até espaços modernos e internacionais

🚗
Acessos e mobilidade:

Com uma localização central e excelentes ligações, o apartamento beneficia de rápidos acessos à A5, que liga Lisboa a Cascais, bem como à A2 e à Ponte 25 de Abril.
Em poucos minutos pode chegar à zona ribeirinha de Alcântara, ao LX Factory, ou ao centro histórico da cidade.
O bairro é bem servido de transportes públicos, incluindo elétricos, autocarros e a futura ligação ao Metropolitano de Lisboa (Estação das Amoreiras).

👨‍👩‍👧‍👦
Perfeito para:

– Casais que valorizam conforto e uma localização premium
– Famílias que procuram um ambiente seguro e com excelentes escolas
– Profissionais que desejam viver perto do centro, com fácil acesso às principais vias e à zona ribeirinha

💫
Um apartamento que combina qualidade, luminosidade e um estilo de vida urbano sofisticado — tudo isto em pleno Campo de Ourique, onde tradição e modernidade se encontram.

📞
Agende já a sua visita. Este apartamento não ficará muito tempo no mercado!

1.850 €
CONDIÇÕES DE CONTRATO

Com a assinatura do contrato de arrendamento o proprietário solicita o seguinte:
– pagamento do valor equivalente a duas rendas
– pagamento do valor de uma renda como caução
– apresentação de fiador
– comprovativo de capacidade financeira para pagar os valores contratados, por parte do inquilino e fiador

Licença de utilização nº 252 de 15/06/1957

Detalhes

  • Área bruta: 99 m2
  • Assoalhadas: 4
  • Quartos: 2
  • Casas de banho: 2
  • Ano de construção: 1957

Características

  • Varanda

Plantas

T2 Renovado e Luminoso em Campo de Ourique 🌿 — Varanda, Suite e Localização de Excelência!

Contacte-nos






    Imóveis deste agente

    Adicionado recentemente

    • Arrenda

    2.500 €

    • Vende
    varanda com telheiro prédio antigo

    Preço sob consulta

    • Vende
    T3 Arroios Equipa Gameiro KW Ábaco

    530.000€